Wersja podstawowa
Projekt domu szkieletowego A-154 "DOM PIASKOWA"
Projekt domu obejmuje dwa całkowicie niezależne lokale mieszkalne. Pierwsze mieszkanie znajduje się na parterze i poddaszu, natomiast drugie zostało zaprojektowane w przyziemiu. Dzięki takiemu układowi budynek może pełnić funkcję zarówno domu całorocznego, jak i komfortowego domu letniskowego. Budynek usytuowany jest na działce z dużym spadkiem terenu, co umożliwia podziwianie pięknych widoków z tarasu oraz z przestronnego, przeszklonego salonu połączonego z jadalnią. Dom zaprojektowano jako obiekt wolnostojący, parterowy, z użytkowym poddaszem i dachem dwuspadowym o kącie nachylenia 42°. Parter stanowi strefę dzienną – z wiatrołapu prowadzi wejście do hallu, z którego dostępny jest salon z miejscem na kominek i wyjściem na taras, kuchnia, łazienka oraz schody na poddasze. Na poddaszu zaplanowano część nocną: trzy sypialnie i łazienkę. W piwnicy mieści się drugi lokal mieszkalny z własnym pokojem dziennym, sypialnią, aneksem kuchennym i łazienką. Mieszkanie w przyziemiu ma także dodatkowe połączenie z parterem poprzez wewnętrzną klatkę schodową. Dom przewidziano w technologii z bala, co sprawia, że jest wyjątkowo przyjazny dla mieszkańców i w pełni wpisuje się w charakter budownictwa energooszczędnego.
Fundamenty: żelbetowe, wylewane
Ściany zewnętrzne: szkieletowe, ocieplone wełną mineralną
Schody: drewniane, żelbetowe
Strop: belkowy, drewniany, otwarty i płyta żelbetowa
Dach: dwuspadowy
Pokrycie dachu: blachodachówka
Nachylenie dachu: 42°
Sposób ogrzewania: piec dwufunkcyjny na gaz ziemny lub płynny.
Istnieje możliwość zastosowania pieca na paliwo stałe. Takie rozwiązanie inwestor może zastosować dokonując zmiany na etapie adaptacji lub w trakcie użytkowania budynku.
Koszt budowy
Szacunkowy koszt budowy w stanie deweloperskim: 499 840 PLN
Szacunkowy koszt stanu surowego zamknietego: 318 080 PLN
Koszty nie obejmują budowy piwnicy.
Podane koszty są szacunkowe i nie mogą zastąpić rzeczywistego kosztorysu.
Termoizolacyjność i energooszczędność
U ściany:0,17 [W/(m²K)]
U dachu: 0,15 [W/(m²K)]
U podłogi na gruncie:0,23 [W/(m²K)]
Warunek EP poniżej: 70,00 [kWh/(m2•rok)]
42°
+7,88
+3,70
-0,30
+2,86
0,00
-2,91
Dane:
| Powierzchnia użytkowa | 113.60 m2 |
| Powierzchnia garażu | brak |
| Powierzchnia piwnicy | 62.60 m2 |
| Powierzchnia podłog | 192.80 m2 |
| Powierzchnia zabudowy | 83.20 m2 |
| Powierzchnia tarasu | 37.00 m2 |
| Kubatura | 671.00 m2 |
| Wysokość | 7.88 m |
| Min. wymiary działki | 16.50x18.00 m2 |
Wersja podstawowa
Wersja podstawowa
| Piwnica | pow. podłogi | pow. użytkowa | |
|---|---|---|---|
| 0.1 | aneks kuchenny | 6.20 m2 | 6.20 m2 |
| 0.2 | łazienka | 4.80 m2 | 4.80 m2 |
| 0.3 | hall | 6.50 m2 | 6.50 m2 |
| 0.4 | pom. gospod. | 9.20 m2 | 9.20 m2 |
| 0.5 | sypialnia | 13.30 m2 | 13.30 m2 |
| 0.6 | pokój dzienny | 22.60 m2 | 22.60 m2 |
| Razem | 62.60 m2 | 62.60 m2 |
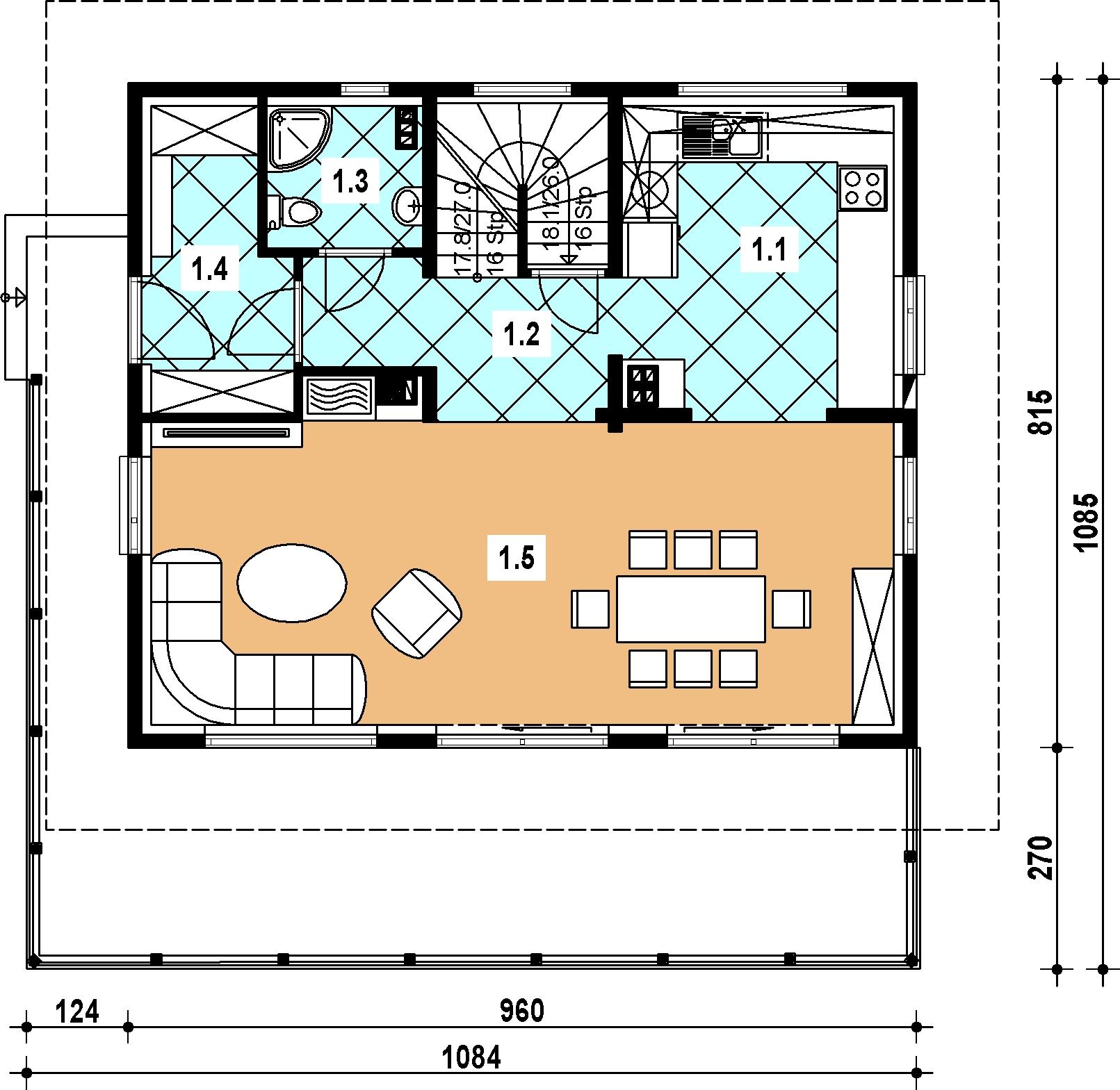
| Parter | pow. podłogi | pow. użytkowa | |
|---|---|---|---|
| 1.1 | kuchnia | 12.50 m2 | 12.50 m2 |
| 1.2 | hall | 7.80 m2 | 7.80 m2 |
| 1.3 | wc | 3.20 m2 | 3.20 m2 |
| 1.4 | wiatrołap | 6.10 m2 | 6.10 m2 |
| 1.5 | pokój dzienny | 35.10 m2 | 35.10 m2 |
| Razem | 64.70 m2 | 64.70 m2 |




