Wersja podstawowa
Projekt domu szkieletowego L-31 "DOM LITEWSKA"
Budynek jednorodzinny, z poddaszem mieszkalnym, niepodpiwniczony, 4 pokoje, kuchnia, jadalnia
Fundamenty: żelbetowe, wylewane
Ściany zewnętrzne: szkieletowe ocieplone wełną mineralną
Schody: drewniane
Strop: belkowy, drewniany, otwarty
Dach: dwuspadowy
Pokrycie dachu: dachówka betonowa
Nachylenie dachu: 40°
Sposób ogrzewania: piec dwufunkcyjny na gaz ziemny lub płynny.
Koszt budowy
Szacunkowy koszt budowy w stanie deweloperskim: 684 200 PLN
Szacunkowy koszt stanu surowego zamknietego: 435 400 PLN
Koszty nie obejmują budowy piwnicy.
Podane koszty są szacunkowe i nie mogą zastąpić rzeczywistego kosztorysu.
Termoizolacyjność i energooszczędność
U ściany:0,17 [W/(m²K)]
U dachu: 0,15 [W/(m²K)]
U podłogi na gruncie:0,23 [W/(m²K)]
Warunek EP poniżej: 70,00 [kWh/(m2•rok)]
40°
+7,09
+3,46
-0,70
+2,63
0,00
0
Dane:
| Powierzchnia użytkowa | 155.50 m2 |
| Powierzchnia garażu | brak |
| Powierzchnia piwnicy | brak |
| Powierzchnia podłog | 177.00 m2 |
| Powierzchnia zabudowy | 104.10 m2 |
| Powierzchnia tarasu | 19.30 m2 |
| Kubatura | 679.90 m2 |
| Wysokość | 7.79 m |
| Min. wymiary działki | 21.00x20.00 m2 |
Wersja podstawowa
Wersja podstawowa
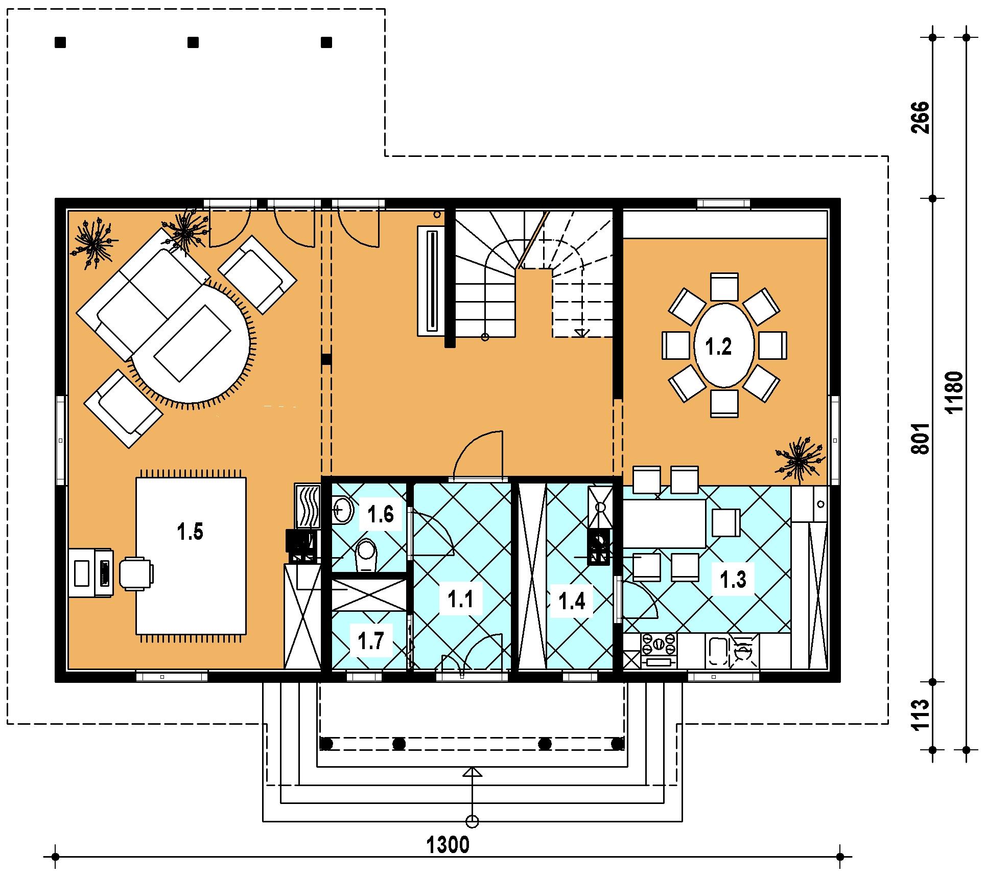
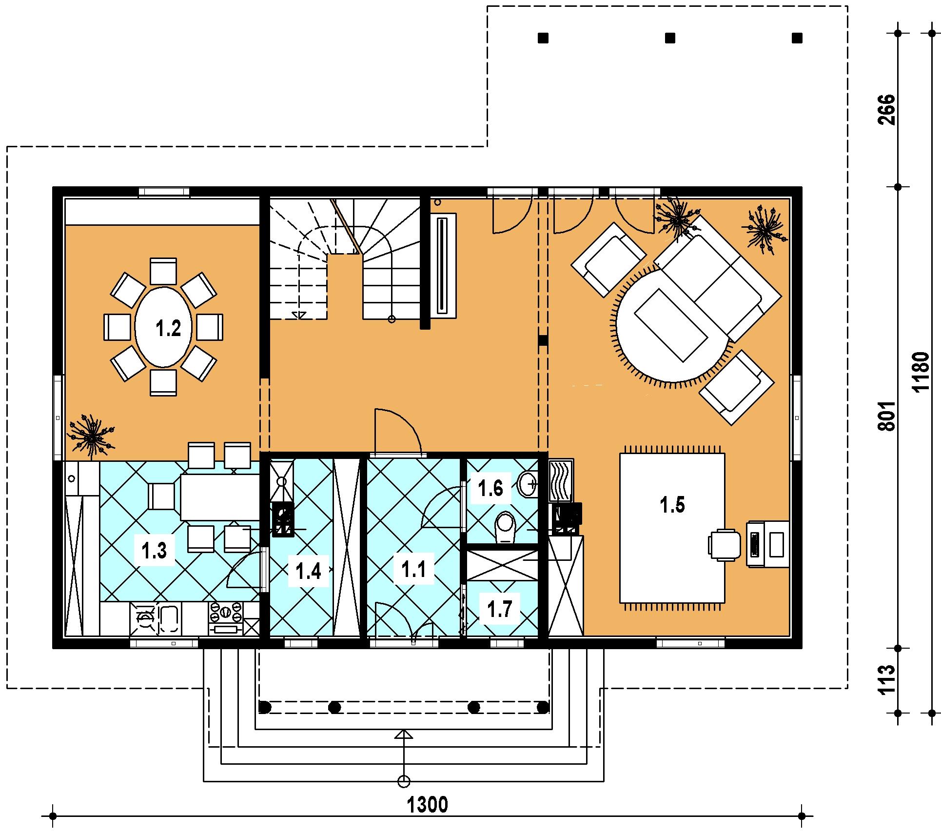
| Parter | pow. podłogi | pow. użytkowa | |
|---|---|---|---|
| 1.1 | wiatrołap | 5.10 m2 | 5.10 m2 |
| 1.2 | jadalnia | 17.40 m2 | 17.40 m2 |
| 1.3 | kuchnia | 8.60 m2 | 8.60 m2 |
| 1.4 | pom. gospodarcze | 4.60 m2 | 4.60 m2 |
| 1.5 | pokój dzienny | 49.70 m2 | 49.70 m2 |
| 1.6 | wc | 1.90 m2 | 1.90 m2 |
| 1.7 | pom. gospodarcze | 1.90 m2 | 1.90 m2 |
| Razem | 89.20 m2 | 89.20 m2 |





