Wersja podstawowa
Projekt domu z bali L-12 "DOM MALARSKA"
Budynek jednorodzinny, parterowy, z poddaszem mieszkalnym, niepodpiwniczony, 4 pokoje, kuchnia, wiata garażowa
Fundamenty: żelbetowe, wylewane
Ściany zewnętrzne: z bali drewnianych gr. 16 plus ocieplenie 12 cm.
Projekt dopuszcza ściany grubości 12, 20, 24, 30 cm ocieplone
od wewnątrz wełną mineralną oraz gr. 62 cm bez ocieplenia.
Schody: drewniane
Strop: belkowy, drewniany, otwarty
Dach: dwuspadowy
Pokrycie dachu: dachówka betonowa
Nachylenie dachu: 45°
Sposób ogrzewania: piec dwufunkcyjny na gaz ziemny lub płynny.
Koszt budowy
Szacunkowy koszt budowy w stanie deweloperskim: 323 500 PLN
Szacunkowy koszt stanu surowego zamknietego: 232 920 PLN
Koszty nie obejmują budowy piwnicy.
Podane koszty są szacunkowe i nie mogą zastąpić rzeczywistego kosztorysu.
Termoizolacyjność i energooszczędność
U ściany:0,20 [W/(m²K)]
U dachu: 0,15 [W/(m²K)]
U podłogi na gruncie:0,23 [W/(m²K)]
Warunek EP poniżej: 70,00 [kWh/(m2•rok)]
45°
+7,18
+3,86
-0,70
+2,90
0,00
0
Dane:
| Powierzchnia użytkowa | 64.70 m2 |
| Powierzchnia garażu | brak |
| Powierzchnia piwnicy | brak |
| Powierzchnia podłog | 75.00 m2 |
| Powierzchnia zabudowy | 52.80 m2 |
| Powierzchnia tarasu | 25.70 m2 |
| Kubatura | 323.80 m2 |
| Wysokość | 7.88 m |
| Min. wymiary działki | 17.00x17.00 m2 |
Wersja podstawowa
Wersja podstawowa
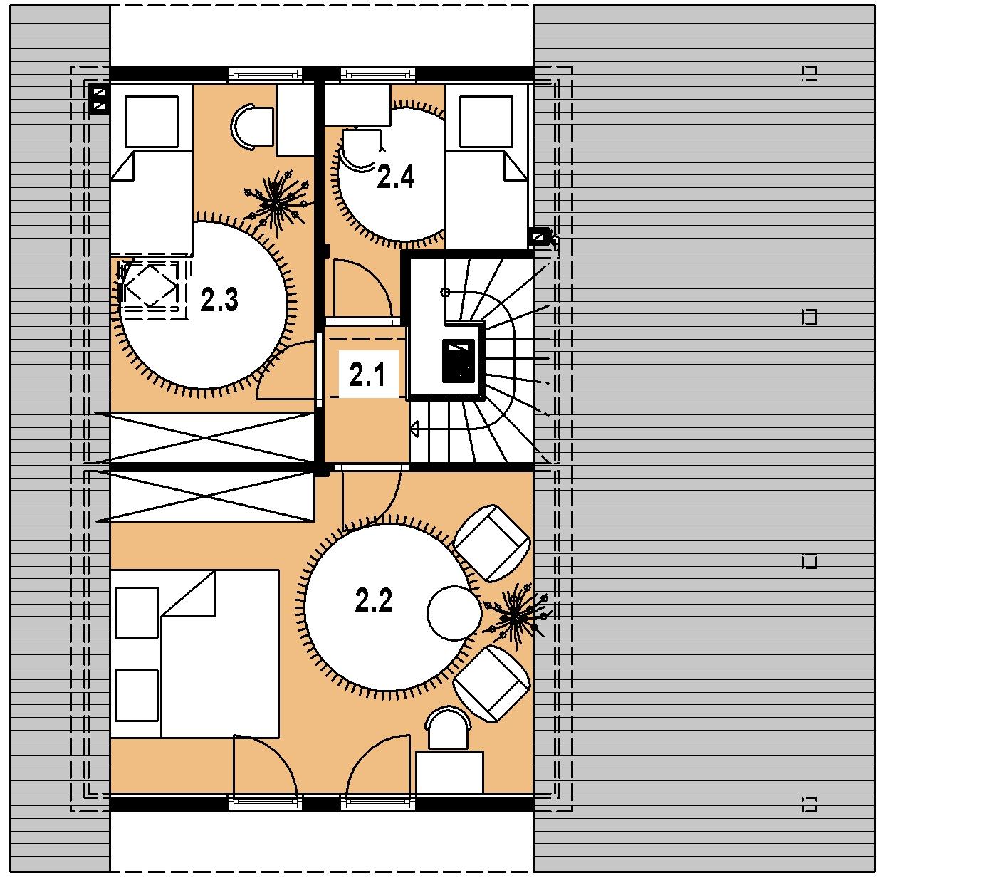
| Parter | pow. podłogi | pow. użytkowa | |
|---|---|---|---|
| 1.1 | wiatrołap | 3.80 m2 | 3.80 m2 |
| 1.2 | pokój dzienny | 17.90 m2 | 17.90 m2 |
| 1.3 | kuchnia | 6.00 m2 | 6.00 m2 |
| 1.4 | łazienka | 4.00 m2 | 4.00 m2 |
| 1.5 | klatka schodowa | 2.00 m2 | 2.00 m2 |
| Razem | 33.70 m2 | 33.70 m2 |





